KiTA Industrial Hub @ Elmina East is a newly launched industrial development featuring 3-storey semi-detached factories in the thriving Elmina East area of Shah Alam U16. Developed by Kiharta Development Sdn Bhd, this project spans 15.34 acres of freehold industrial land, offering a limited 24 units of modern factory premises. Each unit comes with expansive land plots and high-specification build-ups, ideal for business owners seeking operational space or investors looking for premium industrial assets.

Project Overview
- Total Land Development: ~15.34 acres (freehold land title)
- Total Units: 24 semi-detached factory units (3-storey each) for Phase 1
- Developer: Kiharta Development Sdn Bhd (experienced industrial developer)
- Location: Elmina East, Shah Alam (Section U16) – adjacent to the established Elmina Business Park, Klang Valley’s largest freehold industrial park.
Factory Types & Sizes
KiTA Industrial Hub offers factory units in 3 design types to suit different business needs. Each unit boasts a generous land area and spacious built-up across three floors:

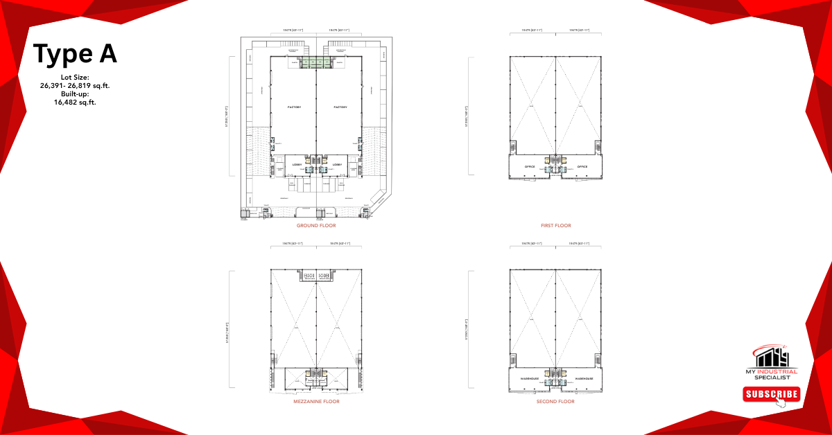
- Type A: Land size from ~26,391 to 26,819 sq. ft.; Built-up area ~16,482 sq. ft.

- Type B: Land size from ~25,520 to 36,464 sq. ft.; Built-up area ~15,789 sq. ft.


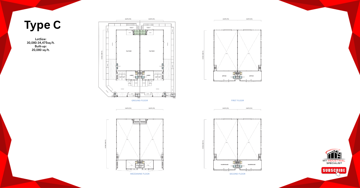
- Type C: Land size from ~30,080 to 34,475 sq. ft.; Built-up area ~20,080 sq. ft.


All factory units feature a semi-detached layout (sharing a common wall with one neighboring unit), maximizing corner positions and access. The expansive land plots provide ample yard space for loading/unloading, parking, or future expansion.
Key Features & Specifications
Each 3-storey semi-D factory at KiTA Industrial Hub is built to modern industrial standards, ensuring optimal functionality and future readiness:

- High Ceiling Warehouse: ~40 ft clear ceiling height in the production/warehouse area for greater vertical storage and to accommodate heavy machinery.
- Robust Power Supply: 3-phase electrical system with 200 Amp capacity, suitable for manufacturing and heavy-duty equipment.
- Heavy Floor Loading: Reinforced concrete flooring supporting up to 25 kN/m² load, finished with power float for durability. This accommodates heavy goods and machinery with ease.
- Raised Loading Bay: Built-in raised platform for lorry/container docking, equipped with motorized roller shutters (up to 4.3m height) and dock levellers for efficient loading and unloading of goods. (Type C units come with 2 loading bays)
- Solar Panel Enabled: Roof structure is designed for solar panel installation (solar-ready), with some packages offering free solar panels – reducing long-term energy costs and promoting sustainability.
- Office & Showroom Space: Each unit’s 3-storey design includes a modern facade with office floors and showroom/reception areas. There are provisions for a lift (elevator) pit and ample window panels to allow natural light into the office sections.
- Infrastructure & Security: The industrial hub is within a gated industrial park environment, featuring wide internal roads for truck access, ample parking space, and 24-hour security for peace of mind (benefiting from being part of the larger City of Elmina industrial zone).

These features ensure that the factories are move-in ready for a variety of industries, offering a combination of high functionality (high ceilings, heavy floor load, sufficient power) and future-proof elements (solar-ready, space for expansion).
Strategic Location & Connectivity
Elmina East, Shah Alam U16 is a highly strategic location for industries, situated along the Guthrie Corridor Expressway (GCE) and within the burgeoning City of Elmina township. KiTA Industrial Hub’s location offers exceptional connectivity and access to key destinations:

- Highway Access: Only about 3 minutes to the GCE highway, which links directly to the NKVE, LATAR, DASH, and other major highways. This network provides swift routes to Port Klang, Kuala Lumpur, and other parts of the Klang Valley.
- Key Distances:
- Port Klang (Westport/Northport): ~38 km (for maritime logistics)
- Subang Airport (Sultan Abdul Aziz Shah Airport): ~11 km (for air cargo and corporate travel)
- Kuala Lumpur City Centre: ~27 km
- Kuala Lumpur International Airport (KLIA / KLIA2): ~60 km
- Kota Damansara: ~12 km
- Subang Jaya / Subang: ~10 km
- Klang town: ~30 km
- Kota Kemuning: ~33 km
Being positioned beside the thriving Guthrie Corridor means the hub enjoys reduced travel time and congestion-free routes to industrial hotspots. Additionally, Elmina Interchange on the GCE and nearby access to the North–South Expressway (NSE) improve connectivity to northern and southern Peninsular Malaysia. This unmatched accessibility is a huge advantage for logistics, distribution, and employee commuting.
Moreover, KiTA Industrial Hub sits next to the established Elmina Business Park, benefiting from the ready infrastructure and amenities of a mature industrial township. The broader City of Elmina is a 5,000-acre masterplanned township that already houses ~40,000 residents (with a future population of 150,000 expected), ensuring a robust pool of skilled workers in the vicinity to support industrial operations. Businesses here will also find convenient access to nearby banks, eateries, and commercial facilities in the surrounding Shah Alam/Subang vicinity.
Ideal for Business Owners & Investors
KiTA Industrial Hub @ Elmina East is positioned as an ideal investment for both owner-occupiers and investors in the industrial property sector:
- Rare Freehold Industrial Asset: Freehold industrial properties in Shah Alam are limited in supply. Owning a unit here means long-term security and the potential for strong capital appreciation in a fast-developing corridor.
- Ready Catchment & Workforce: Being part of the City of Elmina township and adjacent to residential areas means businesses can tap into a local workforce and nearby customer base. The growing population in Elmina (projected 150k residents) underpins future labor supply and market demand for industrial services.
- Flexible Usage: The 3-storey semi-D factories are versatile, catering to various industrial and commercial uses. These units are suitable for manufacturing, engineering R&D, warehousing (including cold storage), distribution centers, showrooms with attached offices, or regional headquarters operations. Such flexibility broadens the pool of potential tenants or buyers, which is attractive for investors.
- Modern Infrastructure: Business owners will appreciate the state-of-the-art facilities (high ceilings, advanced power capacity, loading docks, etc.) that can increase operational efficiency. Investors can leverage these unique selling points when renting out the units, including the solar-ready feature for companies aiming to reduce energy costs.
- Growth Potential: Elmina East is part of Shah Alam’s new growth corridor along the GCE. Upcoming developments (commercial hubs, logistics facilities, and other industrial parks) in this area signal a positive outlook for property values. Being an early entrant into this industrial hub gives owners a first-mover advantage as the area prospers.
In summary, KiTA Industrial Hub offers a combination of prime location, modern industrial design, and freehold tenure – making it a compelling choice for companies looking to expand or relocate in Shah Alam, as well as savvy investors seeking high-quality industrial real estate.
Don’t miss out on this exclusive launch! Contact us today for more information or to schedule a site visit to KiTA Industrial Hub @ Elmina East. Secure your ideal industrial unit now and be part of this thriving industrial community.