Freehold Semi Detached Factory for Sale in Banting | GreenRE & ESG Certified | Ready to Move In

  • RM6.9M

Overview

  • Semi-Detached Factory
  • Property Type
  • 15811 sqft
  • Area Size

Description

Discover a freehold semi detached factory for sale in Banting’s managed industrial park. GreenRE & ESG certified, 25,571 sq ft land with 16,355 sq ft built-up. Move-in ready, near WCE highway. Limited promotion available—view now!

Banting Freehold Semi Detached Factory for Sale | Move-in Ready

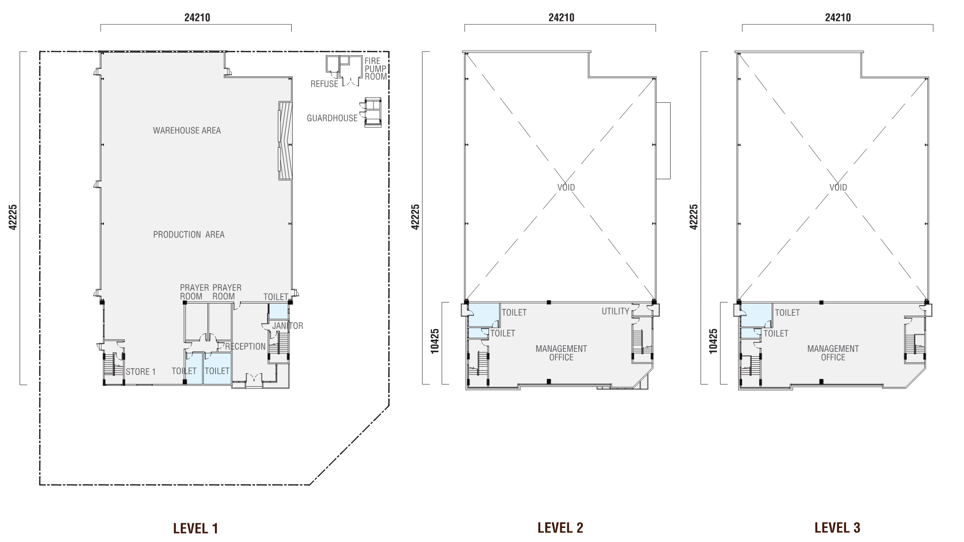
This is a rare opportunity to own a freehold semi detached factory in a certified Green-RE and ESG-compliant managed industrial park in Banting. Strategically located and ready for immediate occupancy, this unit is designed with sustainability, operational efficiency, and excellent connectivity in mind.

Property Highlights:

  • Land Size: 25,571 sq ft

  • Built-Up Areas:

    • Ground Floor: 10,957 sq ft

    • 1st Floor Office: 2,699 sq ft

    • 2nd Floor Office: 2,699 sq ft

    • Total Built-Up: 16,355 sq ft

  • Power Supply: 400 AMP

  • Floor Loading: 20kn/m²

  • Eave Height: 30 ft

  • Tenure: Freehold

Prime Industrial Accessibility:

  • 1 min to WCE Highway

  • Easy connection to:

    • NKVE, SKVE, KESAS, ELITE, FEDERAL & NNKSB Highways

Strategic Location:

  • 25 km to KLIA

  • 28 km to Shah Alam

  • 31 km to North Port

  • 35 km to Putrajaya

  • 42 km to Subang Airport / KLCC

  • 45 km to West Port

Ideal for:

  • Manufacturing

  • Production & Assembling

  • Supply Chain Operations

  • Trading Companies

  • Logistics & Warehousing

  • Corporate Gallery & Showroom


Actual Unit Ready for Visit
Limited Promotion Now: Contact Us for Details!

Contact MyIndustrialSpecialist today to arrange a site visit and secure this high-value semi detached factory for sale in Banting. Let your business grow in Malaysia’s rising industrial hotspot!

Floor Plans

  • Address: Persiaran Kota Seri Langat, Kota Seri Langat,
  • City: Banting
  • State/county: Selangor
  • Zip/Postal Code: 42700
  • Area: Banting Industrial Park
  • Country: Malaysia

Details

Updated on April 23, 2025 at 3:08 pm
  • Price RM6.9M
  • Property Size 15811 sqft
  • Land Area 25571 sqft
  • Property Type Semi-Detached Factory
  • Property Status For Sale

Additional details

  • Special Features Managed Industrial Park (MIP) with Green-RE and ESG Compliance
  • Type Semi detached factory with 1 storey factory and 2 storey office
  • Tenure Freehold
  • Power Supply 400 AMP
  • Floor Loading 20kn/m2
  • Eave height 30 ft

Mortgage Calculator

Compare listings

Compare