New Launch! Semi Detached/ Cluster Factory @Dengkil, Cyberjaya south, Sepang, KLIA

  • RM3.7M

Overview

  • 5765 sqft
  • Area Size

Description

FREEHOLD Dengkil Industrial Factory – Cluster and Semi-D Units for Sale

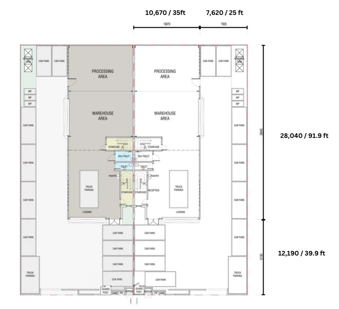
Explore an exciting opportunity to own a brand new industrial factory in the prime industrial hub of Dengkil. This development offers a range of 32 Cluster and 14 Semi-D factory units, designed for businesses seeking modern, well-connected facilities with advanced features for optimized operations.

Property Highlights:
Type: Cluster Semi-D Factory
Tenure: Freehold
Land Size: 60’ x 132’
Build-Up Area: 5,765 sq. ft.
Land Title: Individual
Category: Light and Medium Industry
Floor Loading Capacity:** 20 kN/m²
Power Supply: 3-phase 150amp
Estimated Completion: Q2 2026

Unique Features:
1. Automation-Ready: Designed for modern businesses, the factory is equipped for AI system implementation, making automation and efficient processes easier than ever.
2. High Security: The property is safeguarded with an advanced anti-theft and monitoring system, ensuring the safety of your assets and operations.
3. Solar Power System: Solar panels are provided, offering sustainable energy solutions and reducing overall operational costs.
4. Practical Layout: The Semi-D units feature a flexible layout, including a lift for easy access between floors, providing versatility for various business needs.

Strategic Location & Connectivity:

This industrial development enjoys excellent access to major highways, making it a prime location for logistics and manufacturing. Key highways include ELITE, WCE, SKVE, and KESAS, providing convenient routes to various destinations. The property is only:
15 minutes to WCE,
45 minutes to West Port, and
25 minutes from Kuala Lumpur International Airport (KLIA).

A new route connects the area to Cyber South and Cyberjaya, placing the upcoming Global Tech Hub just 15 minutes away. This strategic connectivity ensures smooth operations and easy access to key locations.

Don’t miss this fantastic opportunity for businesses looking for a well-positioned industrial property in Dengkil. For more information and attractive packages, please contact:

Pui Ling – 016 2255 224

Floor Plans

  • Address: Dengkil, Sepang, 43800, Malaysia
  • City: Sepang
  • Zip/Postal Code: 43800
  • Country: Malaysia

Details

Updated on October 10, 2024 at 5:40 pm
  • Price RM3.7M
  • Property Size 5765 sqft
  • Land Area 7928 sqft

Mortgage Calculator

Compare listings

Compare