Nilai Impian XME Business Park Semi Detached Factory For Rent | Prime Location near PLUS Highway

  • RM12K

Overview

  • Semi-Detached Factory
  • Property Type
  • 6457 sqft
  • Area Size

Description

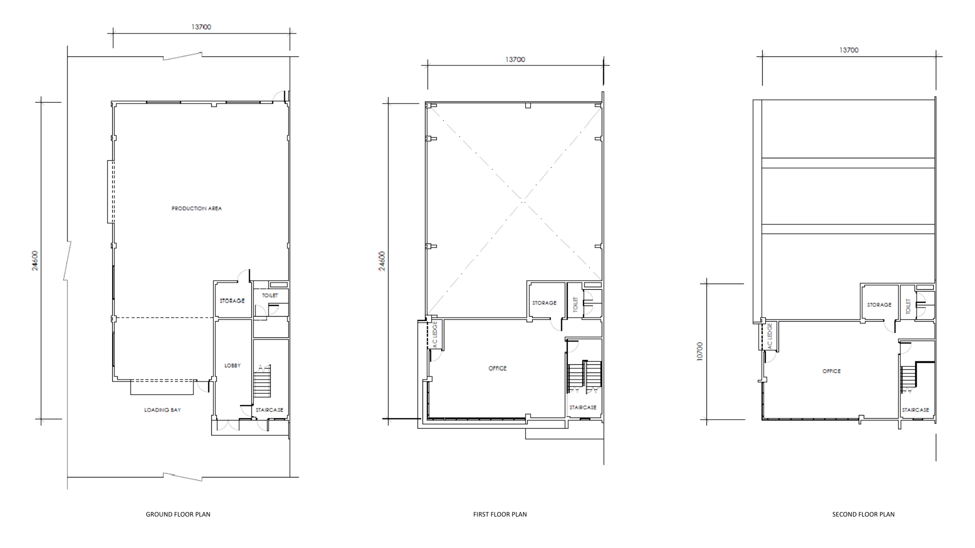
Nilai Impian XME Business Park 3-storey semi detached factory for rent. 6,457 sq ft built-up, 8,964 sq ft land, 150 AMP power, easy access to PLUS, LEKAS, ELITE highways. Ideal for logistics, manufacturing, and warehouse operations. Contact now!

Semi Detached Factory For Rent

Nilai Impian XME Business Park 3-Storey Semi Detached Factory For Rent

Introducing a newly completed, ready-to-move-in semi detached factory for rent at XME Business Park, Nilai Impian—Nilai’s first managed industrial park. Strategically located next to the PLUS highway, this property offers exceptional accessibility, excellent infrastructure, and modern facilities ideal for a variety of business operations.

Factory Details:

  • Land Size: 8,964 sq ft

  • Built-Up Area: 6,457 sq ft

  • Power Supply: 150 AMP

  • Floor Loading: 20 kn/m²

  • Shutters: 2 Motorised shutters

  • Availability: Immediate (Just handover, move-in ready)

Key Advantages:

  • Prime location next to major expressways

  • Managed industrial park ensuring security and convenience

  • Modern and corporate building façade

  • High visibility and excellent connectivity

Strategic Connectivity:

  • Directly next to PLUS Highway

  • Easy access to LEKAS Highway, ELITE Highway, and NILAI-LABU-ENSTEK EXPRESSWAY

  • Ideal location for logistics, warehouse, manufacturing, or corporate office

Asking Rental:

  • RM 12,000 (Negotiable)

Limited units available—seize this opportunity to establish or expand your operations at a premium industrial address.

Contact us now for viewing arrangements or further details!

Floor Plans

  • Address: Jalan Nilai Impian 3, Nilai Impian, Seremban, Negeri Sembilan, 71800, Malaysia
  • City: Nilai
  • State/county: Negeri Sembilan
  • Zip/Postal Code: 71800
  • Area: XME Business Park
  • Country: Malaysia

Details

Updated on March 25, 2025 at 12:56 pm
  • Price RM12K
  • Property Size 6457 sqft
  • Land Area 8964 sqft
  • Property Type Semi-Detached Factory
  • Property Status For Rent

Additional details

  • Type 1 storey factory with 2 storey office with tiles
  • Power supply 150 AMP
  • Floor loading 20kn/m2

Compare listings

Compare