Nova Business Park Jalan Sungai Buloh | Detached Commercial for Sale with 10,253 sq ft Built-Up

  • RM9.9M

Overview

  • Detached Factory
  • Property Type
  • 10253 sqft
  • Area Size

Description

Rare 2.5 storey detached commercial at Nova Business Park, Jalan Sungai Buloh. 10,253 sq ft built-up, 200 AMP power, 40 ft eave height. Facing main road with high visibility.

Nova Business Park @ Jalan Sungai Buloh – Rare Detached Commercial for Sale

Introducing a rare detached commercial property for sale at Nova Business Park, strategically located along Jalan Sungai Buloh. This 2.5 storey modern detached commercial unit combines functional space, prime visibility, and high accessibility — perfect for business owners, investors, and brands looking to establish a strong presence in Subang’s commercial corridor.

Key Specifications:

  • Property Type: 2.5 Storey Detached Commercial Building

  • Land Size: 183’ x 130’

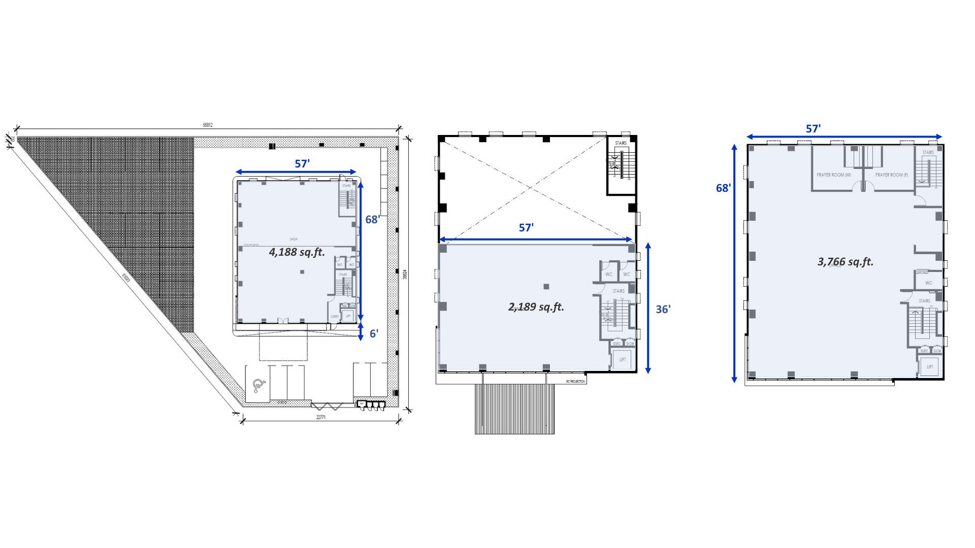
  • Total Built-Up: 10,253 sq ft

    • Ground Floor: 4,188 sq ft

    • First Floor: 2,189 sq ft

    • Second Floor: 3,766 sq ft

  • Power Supply: 200 AMP (3-phase)

  • Eave Height: 40 ft

  • Floor Loading: 5kN/m²

  • Tenure: Leasehold (99 years)

  • Title: Individual Commercial Title

  • Asking Price: RM 9,900,000

  • Incentive: Free SPA & Loan Legal Fees

Prime Location & Accessibility

This detached commercial property enjoys one of the most strategic locations in Nova Business Park, Jalan Sungai Buloh, surrounded by established commercial and industrial developments.

Key access points include:

  • 1 min to DASH Highway

  • 7 mins to GCE Highway

  • 5 km to Subang Airport

The unit sits facing the main road, offering maximum visibility, high impression, and strong exposure — making it an ideal choice for businesses seeking both functionality and brand visibility.

Perfect for Multi-Functional Business Use

With its 10,253 sq ft built-up, modern architecture, and 40 ft eave height, this detached commercial building suits a wide range of businesses, such as:

  • Showroom & Office

  • R&D or Technology Hub

  • E-commerce Fulfilment Centre

  • Wellness or Fitness Centre

  • Food & Beverage Concept Store

  • Training Centre / Diagnostic Lab / Co-working Space

The design supports multi-use flexibility — enabling seamless integration of office, showroom, and storage areas under one roof.

Investment Highlights

  • Rare Detached Commercial Unit – limited availability in Nova Business Park

  • Facing Main Road – premium visibility for corporate branding

  • Free SPA & Loan Legal Fees – direct buyer savings

  • Strategic Access to DASH & GCE highways

  • Modern Design with 200 AMP Power Supply

  • High Capital Appreciation Potential in the Subang–Sg Buloh growth corridor

This property presents a prestigious commercial address with high appreciation potential, ideal for long-term investors or businesses seeking prime positioning.

Don’t miss this rare detached commercial for sale at Nova Business Park, Jalan Sungai Buloh. Contact myindustrialspecialist.com or 012-784 9468 Mason today to arrange a private viewing or learn more about this exclusive opportunity.

Floor Plans

  • Address: Jalan Sungai Buloh, Pangsapuri Jasmin, Section U5, Subang, Shah Alam, Petaling, Selangor,
  • City: Shah Alam
  • State/county: Selangor
  • Zip/Postal Code: 40800
  • Area: Subang
  • Country: Malaysia

Details

Updated on October 31, 2025 at 4:13 pm
  • Price RM9.9M
  • Property Size 10253 sqft
  • Land Area 16885 sqft
  • Property Type Detached Factory
  • Property Status For Sale

Additional details

  • Type Detached commercial lots
  • Tenure Leasehold
  • Power Supply 200 AMP
  • Floor loading 5kn/m2
  • Eave height 40 ft

Mortgage Calculator

Compare listings

Compare