Pre-Launch Super Terrace Factory in Kundang – Strategic Location Near LATAR Highway

  • RM1.5M

Overview

  • Link Factory ​​
  • Property Type
  • 3450 sqft
  • Area Size

Description

Explore the pre-launch of a terrace factory in Kundang, strategically located 1 minute from LATAR highway. This new industrial landmark offers rare specs, special promotions, and high loan margins.

Pre-Launch Terrace Factory in Kundang

Introducing an exceptional opportunity to secure a terrace factory in the rapidly growing Kundang area. This industrial project is set to become a new landmark, boasting high visibility right by the roadside and offering unparalleled connectivity. Located just 1 minute from LATAR highway and 5 minutes to Kundang Town, this property provides seamless access to major highways such as LATAR, NKVE, GCE, and WCE.

Key Features:

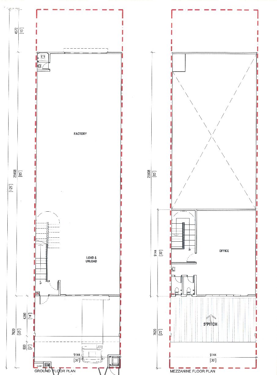
  • Land Size: 30’ x 125’
  • Built-Up Area: 3,600 sq ft
  • Power Supply: 100 AMP
  • Eave Height: 28 feet
  • Floor Loading: 10kn/m²

This terrace factory stands out in the market with its rare specifications, making it a super terrace factory that’s hard to find elsewhere. Currently in the pre-launch phase, buyers can take advantage of special promotions and enjoy loan margins of up to 90%.

Surrounding Amenities:

  • SME Companies: Ideal for manufacturing, production, and light industries.
  • Nearby Facilities: Petrol stations, logistics hubs, restaurants, grocery markets, banks, and more.

Open for booking now with a deposit of RM 10,000. Don’t miss out on this unique opportunity in Kundang’s booming industrial landscape. Contact us MyIndustrialSpecialist for more information and to arrange a site visit.

Floor Plans

  • Address: Jalan Kampung Baru Sri Kundang
  • City: Kundang
  • State/county: Selangor
  • Zip/Postal Code: 48020
  • Area: Kundang Industrial Park
  • Country: Malaysia

Details

Updated on August 9, 2024 at 12:08 am
  • Price RM1.5M
  • Property Size 3450 sqft
  • Land Area 3750 sqft
  • Property Type Link Factory ​​
  • Property Status For Sale

Additional details

  • Title Individual Title
  • Tenure Leasehold 99 years
  • Power Supply 100 AMP
  • Eave Height 28 Feet
  • Floor Loading 10kn/m2

Mortgage Calculator

Compare listings

Compare