Featured For Rent

Spacious 3-Storey Semi-D Corner Factory for Rent in Puchong Perdana Industrial Park Phase 2

  • RM25K

Overview

  • Semi-Detached Factory
  • Property Type
  • 7585 sqft
  • Area Size

Description

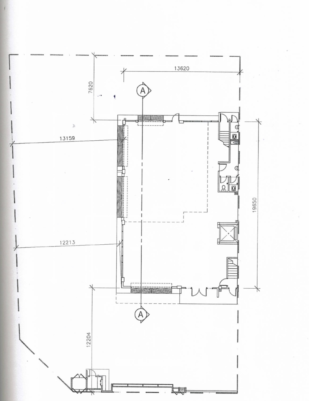
Rent a spacious 3-storey semi-d corner factory in Puchong Perdana Industrial Park Phase 2. Land size: 85’ x 130’, built-up: 7,585 sq ft, service lift, 10kn floor loading, 100 amp power supply, motorized shutter, guard house. Easy access to SKVE highway. Rental: RM 25,000.

This spacious 3-storey semi-d corner factory for rent in Puchong Perdana Industrial Park Phase 2 offers an exceptional opportunity for businesses. Here are the key features of this property:

  • Type: 3-storey Semi-D Corner Factory
  • Land Size: 85’ x 130’
  • Built-Up Area: 7,585 sq ft
  • Facilities: Equipped with a service lift, motorized shutter, and guard house
  • Floor Loading: 10kn
  • Power Supply: 100 amp
  • Asking Rental: RM 25,000 per month
  • Location: Puchong Perdana Industrial Park Phase 2, easy access to SKVE highway

Why Choose This Factory?

  • Prime Location: Situated in Puchong Perdana Industrial Park Phase 2, with easy access to SKVE highway.
  • Spacious Layout: Large land size and built-up area, ideal for various industrial activities.
  • Modern Facilities: Includes a service lift, motorized shutter, and guard house for added convenience and security.
  • Robust Infrastructure: High floor loading capacity and substantial power supply to support heavy-duty operations.

This semi-d corner factory is perfect for businesses looking to expand their operations in a strategic and thriving industrial area. Whether you’re looking for a factory for rent or an industrial property for rent, this property offers the versatility to meet various industrial needs. Don’t miss out on this incredible opportunity to secure a semi-d factory for rent in Puchong Perdana Industrial Park Phase 2.

For more information or to arrange a viewing, please contact us at My Industrial Specialist. Let us help you find the perfect factory for rent to suit your business needs and support your growth.

 

Floor Plans

  • Address: jalan pp 16/4, taman putra perdana
  • City: Puchong
  • State/county: Selangor
  • Zip/Postal Code: 47130
  • Area: Perdana Industrial Park
  • Country: Malaysia

Details

Updated on July 19, 2024 at 11:27 am
  • Price RM25K
  • Property Size 7585 sqft
  • Land Area 11050 sqft
  • Property Type Semi-Detached Factory
  • Property Status For Rent

Additional details

  • Type Corner
  • Zonning Light & Medium Industry
  • Lift Have

Compare listings

Compare